Projet universitaire Cabane à carrelet

Concept / sujet

Pour ce projet, nous devions réinventer une tradition de notre choix et pour cel anous devions travailler par groupe de trois personnes. 

Pour notre part, nous avons choisi la tradition bretonne de la cabane à carrelet.

Les cabanes à carrelet tiennent leur nom du filet carré qui sert à pêcher depuis ces installations. Ce sont des cabanes en planches de châtaignier construites sur des pilotis en bois et qui sont reliées à la terre par un long ponton. Ces cabanes sont souvent colorées. Pour la fabrication du filet une méthode traditionnelle du travail de la corde est utilisée. Le soir les pêcheurs se retrouvaient dans ces cabanes pour discuter et faire la fête. Il y a dix-sept cabanes de ce type qui ont été recensées au bord de la Rance en Bretagne. Elles datent des années 1960.

Problématiques : Comment redonner à ces cabanes laissées à l’abandon leur esprit d’antan ? Comment ramener au goût du jour ces cabanes oubliées au travers des traditions bretonnes ?

Usage et fonction

Usage et fonction

Tout commence par la maison principal d’où se découle les trois cabanes. Chaque cabanes possèdent une fonction et une couleur différentes afin de les différencier.

La première est bleue et s’appelle “Le Pentis” qui signifie une petite maison (2 pièces) en breton. Elle sert de salle de restauration dont les familles peuvent privatiser pour des repas ou des réunions de famille.

La deuxième est violette et se nomme “Le Pesketaer” qui se traduit par pêcheur en breton. Elle peut aussi être privatisée par des groupes de jeunes, de personnes plus âgées et des familles. C’est un lieu de détente pour se retrouver, discuter et faire des jeux.

La troisième est rouge et nous l’avons nommée “L’An-dro” qui est référence à une danse traditionnelle bretonne. Celle-ci est une salle de danse pour pratiquer les danses bretonnes telles que : La Gavotte, Laridé, L’Andro, Le pin, et pleins d’autres.

Comme dit précédemment chaque maisons possèdent une fonction, dont certaines accueillent des ateliers. Voici quelques exemples d’affiches d’atelier ainsi que le programme de la semaine que propose notre maison du Tea Pêcheur.

Vue 3D

Vue 3D

Par la suite, nous avons représenté nos cabanes en réalisation 3D, intérieur et extérieures

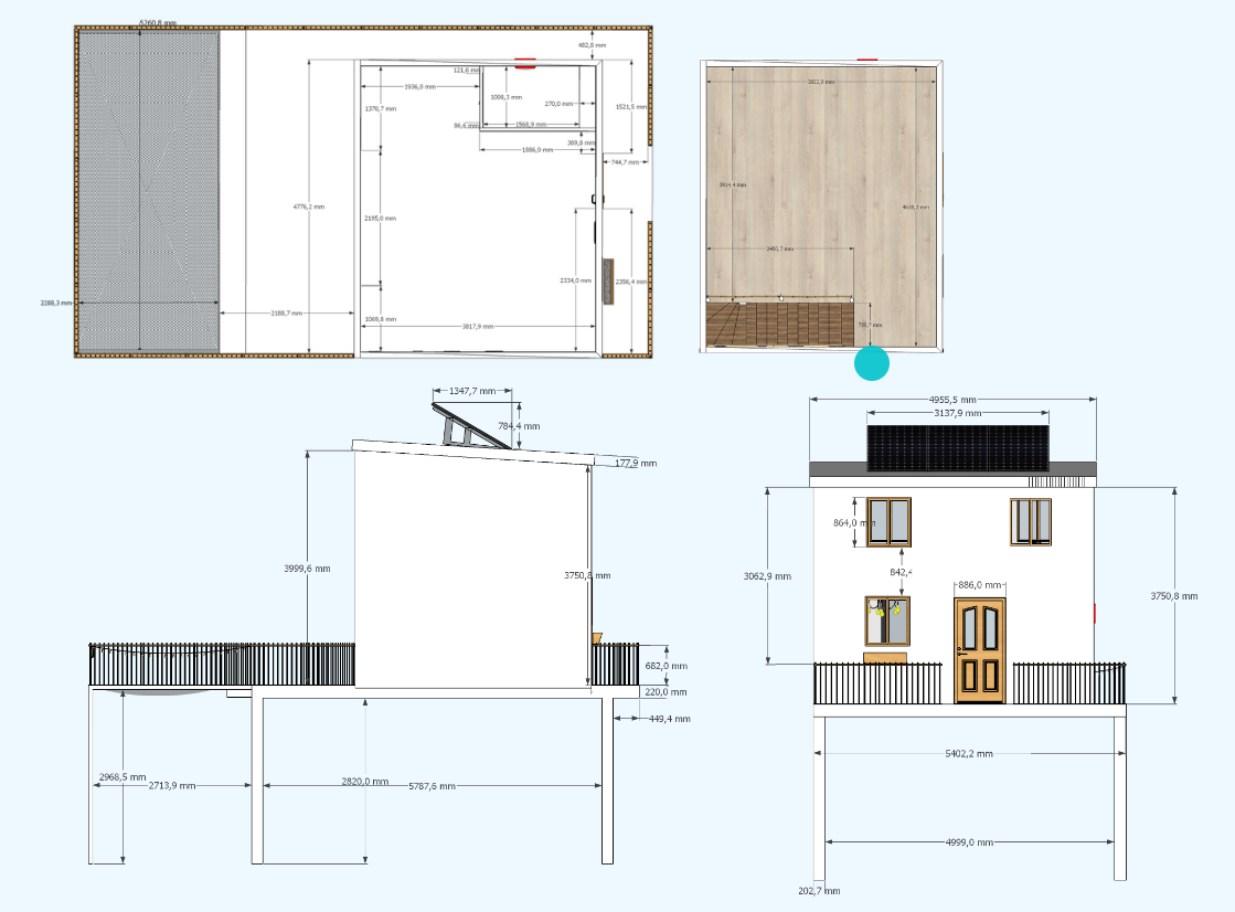
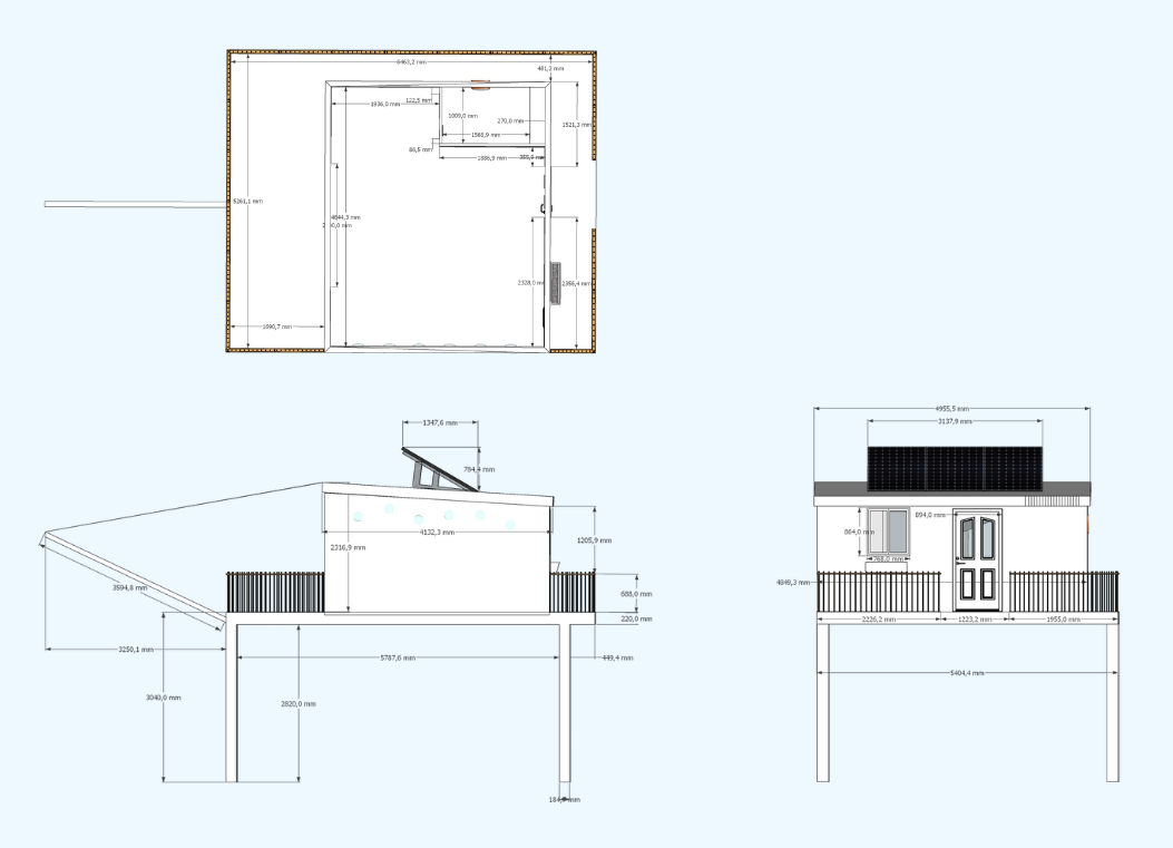
Géométraux

Géométraux

Et pour finir, nous avons approfondi la technique en réalisant des plans géométraux.

Intéressé par mon profil ?